业主注意啦!新湖·金溪花园这些地方有调整!现公示中……

公示内容:乐清新湖联合置业有限公司的乐清市Zx-16a-1、Zx-16b-1地块(一期Zx-16a-1地块)建设工程竣工规划核实

公示时间:2023年10月23日-2023年11月1日
申请人乐清新湖联合置业有限公司向我局提出申请,要求办理乐清市Zx-16a-1、Zx-16b-1地块(一期Zx-16a-1地块)建设工程竣工规划核实,该项目于2020年10月14日办理建设工程规划许可证(建字第浙规证2020-038200250号),批准建设规模120120㎡(其中不计容地下室建筑面积29150㎡,不计容架空建筑面积2436.5㎡)。现经图件核验和现场勘查,现场与原许可存在微调,经审核拟同意,具体内容如下:
1.局部围墙、室外箱变、燃气调压柜局部移位改变。
2.局部机动车位、非机动车位未按图建设;且非机动车停车位增加9个(地上增加15个,地下减少6个)。
3.增加雕塑、构架、塑胶跑道、水景等室外绿化景观改变。
4.地下室:增设一处5G机房;3#楼北侧增设游泳池设备房;8#楼下增设配电小间。
5.厨房外燃气立管处增加防雨百叶;出入口防坠落轻钢雨棚外包铝板由“咖啡色”改为“黄铜色”。
6.4#楼商业北立面方案效果图上有4个柱子取消。

公示期间,与本项目有重大利害关系的公民、法人以及其他组织,若有不同意见,可持相关身份证明和证明关系存在的证据材料向乐清市自然资源和规划局(乐清市乐成街道宁康东路98号)申报,登记为利害关系人,依法行使陈述、申辩以及申请听证等权利。逾期不申报,视为放弃上述权利(联系电话:0577-62596703)。
原总平:

新总平:

区位图:


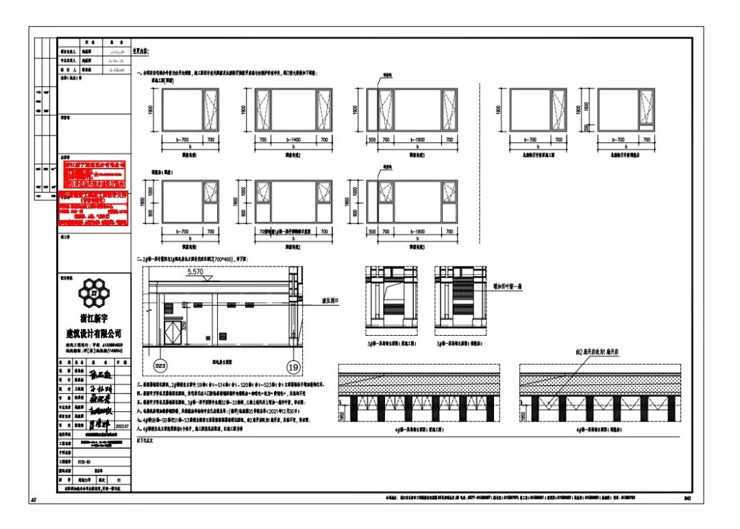
本次更改内容如下图所示:
建施29号联系单
建施30号联系单
新湖一期地下室建筑变更单
新湖一期地下室建筑变更单
新湖一期地下室建筑变更单
地下室非机动车位图
地下非机动车位对比图


